4566 Toledo Way

Buena Park, CA 90621

$ 635,000

Price

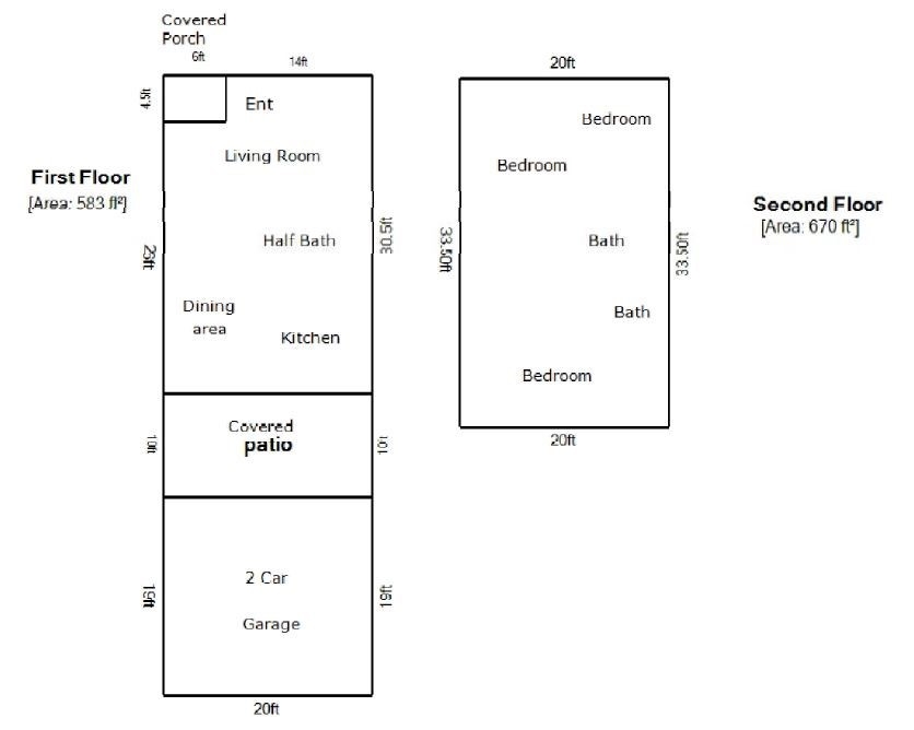
3

Beds

2.5

Baths

1,300 Sq. Ft.

$488 / Sq. Ft.

486 Days On Market

Favorite

Share

Casitas California Building

Have You Been Pre-Qualified? Start Now

Listing provided by agent Matthew George BRE# 02021735 at Matthew D. George, Broker.

Last Updated: 475 days ago

This 3 bed 2.5 bath condo is located in the desirable Casitas California community in Buena Park. With an open mind a some hard work, this blank canvas can become your dream home. Centrally located near entertainment, restaurants, and perfect for commuting. This will not last.

Show More
Property Type Townhouse
Lot Size 1,667 sq. ft.
Year Built 1972
MLS # OC24147941
Listing Type Closed
Heating Central
Cooling Central Air
Pool Association
Laundry In Garage
Parking Garage Faces Side
Gated Community No

Payment Calculator

40% Complete (success)
80% Complete (danger)
20% Complete
80% Complete (danger)
60% Complete (warning)
Principal and Interest
Property Taxes
Homeowners' Insurance
HOA Dues
Mortgage Insurance
Image Calculator Icon Customize Calculations | Compare Mortgage Rates

Property Details for: 4566 Toledo Way

Interior Features

Bathroom Information
  • 2 full baths, 1 half bath
Laundry Information
  • In Garage
Heating & Cooling
  • Central Air
  • Central

Parking / Garage, Multi-Unit Information, Location Details

Parking Information
  • Garage Faces Side
Community Features
  • Units in Complex (Total) 232

Exterior Features

Pool & Spa Information
  • Association
Building Information
  • Total Floors: 2

Property / Lot Details

Property Features
  • Park/Greenbelt
Lot Information
  • Lot Size (Sq. Ft) 1,667
Property Information
  • Attached
  • Tax Parcel Number: 06648250

Recently Sold Homes Near 4566 Toledo Way

Nearby Businesses

  • Grocery Stores
  • Drug Stores
  • Coffee Shops
  • Restaurants
  • Health & Medical
  • Fitness & Activity
  • Arts & Entertainment
  • Nightlife & Bars
    Browse all businesses in Buena Park, CA, 90621

    Tour This Condo

    FRIDAY

    26

    DEC

    SATURDAY

    27

    DEC

    SUNDAY

    28

    DEC

    MONDAY

    29

    DEC

    TUESDAY

    30

    DEC

    WEDNESDAY

    31

    DEC

    THURSDAY

    1

    JAN

    Schedule A Tour
    Ryan Case, Licensed Realtor & Team Lead

    Ryan Case

    Licensed Realtor & Team Lead

    949-570-4445 Contact Ryan Case
    Listing provided by agent Matthew George BRE# 02021735 at Matthew D. George, Broker.

    Last Updated: 475 days ago

    Similar Condos For Sale

    For Sale

    $ 714,800

    3 beds, 1.5 baths, 1,240 sq.ft.

    4738 Durango Drive ...
    View All 19 Condos